ФП 12

Чертеж изделия:
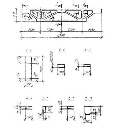
Характеристики изделия:
ПараметрЗначение
длина11960 мм
ширина500 мм
высота1800 мм
масса8350 кг
нормативный документГОСТ 20213-89

ФП 12  Фермы подстропильные для покрытий из плит длиной на пролет ГОСТ 20213-89.