МП 2
Характеристики изделия:
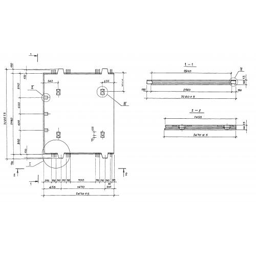
| Параметр | Значение |
|---|---|
| длина | 3280 мм |
| ширина | 2670 мм |
| высота | 160 мм |
| масса | 3250 кг |
| нормативный документ | ГОСТ 27108-86 |
Цена:
Рассчитать стоимостьМП 2 Межколонные плиты ГОСТ 27108-86.
| Параметр | Значение |
|---|---|
| длина | 3280 мм |
| ширина | 2670 мм |
| высота | 160 мм |
| масса | 3250 кг |
| нормативный документ | ГОСТ 27108-86 |
МП 2 Межколонные плиты ГОСТ 27108-86.
