БФ 83

Чертеж изделия:
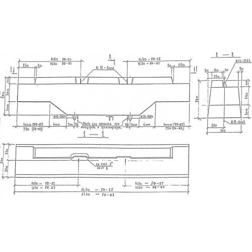
Характеристики изделия:
ПараметрЗначение
длина8260 мм
ширина510 мм
высота580 мм
масса4400 кг
нормативный документАльбом РС 1251-93

БФ 83 Балки фундаментные Альбом РС 1251-93.