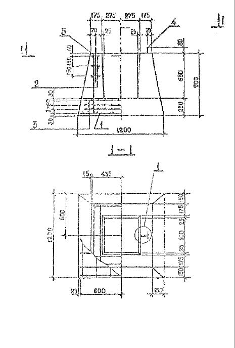
Ф 12

Чертеж изделия:
Характеристики изделия:
ПараметрЗначение
длина1200 мм
ширина1200 мм
высота1050 мм
масса2100 кг
нормативный документСерия 1.020-1

Ф 12  Фундаменты Серия 1.020-1.