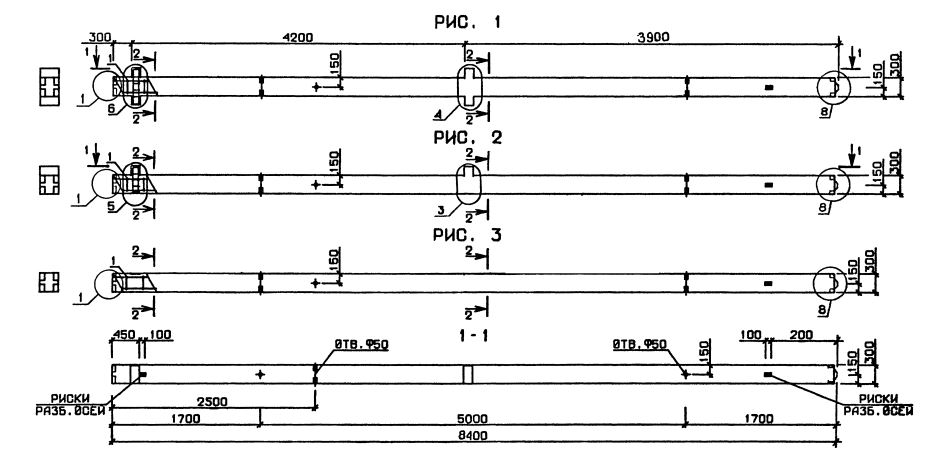
2К 3.42

Чертеж изделия:
Характеристики изделия:
ПараметрЗначение
длина8400 мм
ширина300 мм
высота300 мм
масса1970 кг
нормативный документСерия 1.020.1-3пв

2К 3.42  Колонны Серия 1.020.1-3пв.