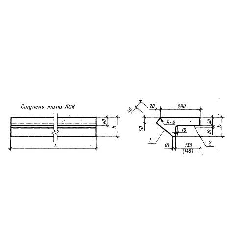
ЛСН 15
Характеристики изделия:
| Параметр | Значение |
|---|---|
| длина | 1500 мм |
| ширина | 290 мм |
| высота | 124 мм |
| вес | 85 кг |
| серия | 1.055.1-1 |
Цена:
Рассчитать стоимостьЛСН 15 Ступени нижние фризовые по серии 1.055.1-1.
| Параметр | Значение |
|---|---|
| длина | 1500 мм |
| ширина | 290 мм |
| высота | 124 мм |
| вес | 85 кг |
| серия | 1.055.1-1 |
ЛСН 15 Ступени нижние фризовые по серии 1.055.1-1.
