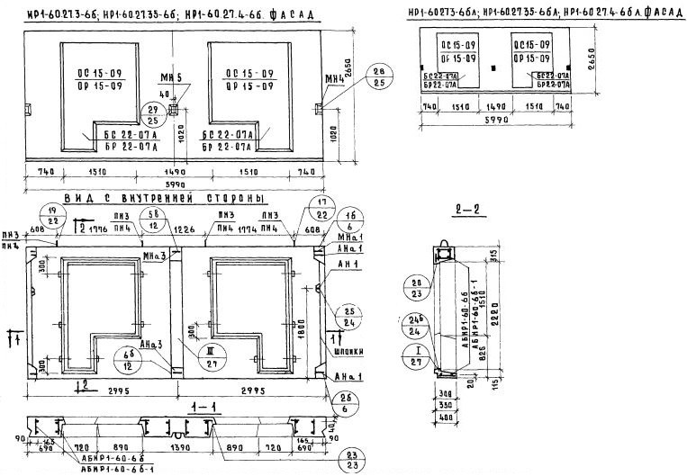
НР1-60.27.4-6бл

Чертеж изделия:
Характеристики изделия:
ПараметрЗначение
Длина5990 мм
Ширина400 мм
Высота2650 кг
Масса5740 кг
Нормативный документСерия 1.132-1

НР1-60.27.4-6бл   Наружная стеновая панель рядовая по Серии 1.132-1.