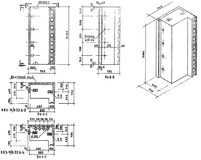
НБУ-9/8.22.6-3

Чертеж изделия:
Характеристики изделия:
ПараметрЗначение
Длина960 мм
Ширина790 мм
Высота2180 мм
Масса2420 кг
Нормативный документСерия 1.133-1

Стеновые легкобетонные блоки толщиной 60 см по Серии 1.133-1.

НБУ-9/8.22.6-3  Простеночный блок температурного шва.