ПК 63.12
Характеристики изделия:
| Параметр | Значение |
|---|---|
| длина | 6280 мм |
| ширина | 1790 мм |
| высота | 220 мм |
| вес | 3475 кг |
| серия | 1.141.1 КЛ-3 |
Цена:
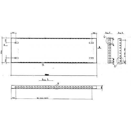
Рассчитать стоимостьПК 63.12 Плита перекрытия с круглыми пустотами по серии 1.141.1 КЛ-3.
| Параметр | Значение |
|---|---|
| длина | 6280 мм |
| ширина | 1790 мм |
| высота | 220 мм |
| вес | 3475 кг |
| серия | 1.141.1 КЛ-3 |
ПК 63.12 Плита перекрытия с круглыми пустотами по серии 1.141.1 КЛ-3.
