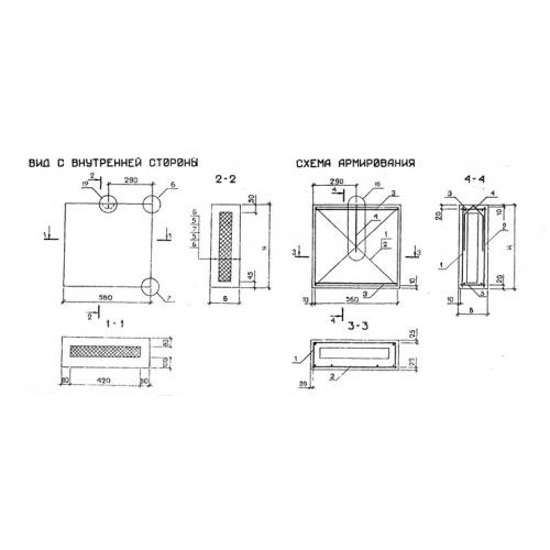
ПСТ 6.18.3.0 панели стеновые
Характеристики изделия:
| Параметр | Значение |
|---|---|
| длина | 580 мм |
| ширина | 300 мм |
| высота | 1785 мм |
| масса | 430 кг |
| нормативный документ | Серия 1.232.1-7 |
Цена:
Рассчитать стоимостьПСТ 6.18.3.0 Панели стеновые трехслойные (простеночные) Серия 1.232.1-7.
