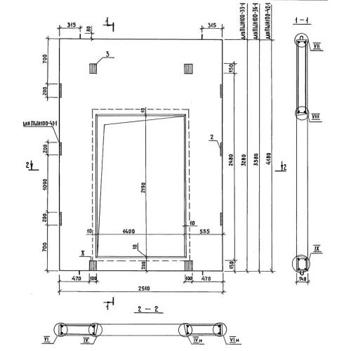
ПШЛ 100-33
Характеристики изделия:
| Параметр | Значение |
|---|---|
| длина | 2510 мм |
| ширина | 140 мм |
| высота | 3280 мм |
| вес | 1800 кг |
| серия | 1.289.1-2 |
Цена:
Рассчитать стоимостьПШЛ 100-33 Панели шахт лифтов по серии 1.289.1-2.
| Параметр | Значение |
|---|---|
| длина | 2510 мм |
| ширина | 140 мм |
| высота | 3280 мм |
| вес | 1800 кг |
| серия | 1.289.1-2 |
ПШЛ 100-33 Панели шахт лифтов по серии 1.289.1-2.
