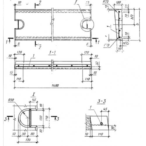
ПП 15-60

Чертеж изделия:
Характеристики изделия:
ПараметрЗначение
длина1490 мм
ширина600 мм
высота100 мм
вес180 кг
серия1.438-1

ПП 15-60 Плиты парапетные по серии 1.438-1.