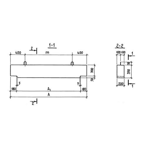
Б 18

Чертеж изделия:
Характеристики изделия:
ПараметрЗначение
длина2160 мм
ширина200 мм
высота350 мм
масса380 кг
нормативный документСерия 3.006.1-3/83

Б 18 Балки тоннелей Серия 3.006.1-3/83.