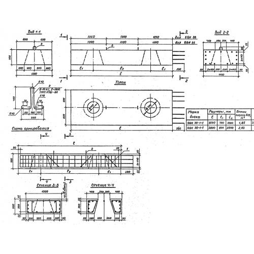
6БН 35

Чертеж изделия:
Характеристики изделия:
ПараметрЗначение
длина3500 мм
ширина1200 мм
высота500 мм
вес4630 кг
серия3.503.1-79

6БН 35  Блоки насадок  по серии 3.503.1-79.