ПСТ 1

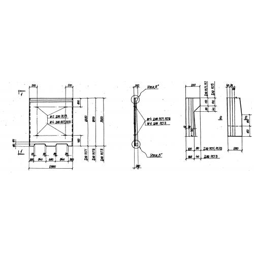
Чертеж изделия:
Характеристики изделия:
ПараметрЗначение
длина2980 мм
ширина2450 мм
высота200 мм
вес2900 кг
серияИС-01-05

ПСТ 1 Плиты стеновые по серии ИС-01-05