ПСЛ 20
Характеристики изделия:
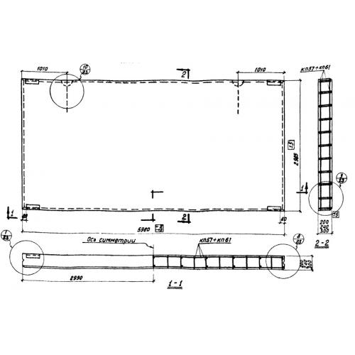
| Параметр | Значение |
|---|---|
| длина | 5980 мм |
| ширина | 200 мм |
| высота | 2980 мм |
| масса | 5200 кг |
| нормативный документ | Серия СТ 02-33 |
Цена:
Рассчитать стоимостьПСЛ 20 Панели стеновые наружные из легкого бетона по Серии СТ 02-33.
| Параметр | Значение |
|---|---|
| длина | 5980 мм |
| ширина | 200 мм |
| высота | 2980 мм |
| масса | 5200 кг |
| нормативный документ | Серия СТ 02-33 |
ПСЛ 20 Панели стеновые наружные из легкого бетона по Серии СТ 02-33.
