ПСЛ 24

Чертеж изделия:
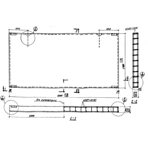
Характеристики изделия:
ПараметрЗначение
длина5980 мм
ширина240 мм
высота2985 мм
масса5800 кг
нормативный документСерия СТ 02-33

ПСЛ 24 Панели наружные стеновые из легкого бетона по Серии СТ 02-33.